Назначение системы:
- обеспечения автоматизированного раздельного учёта электрической энергии по технологическим объектам и технологическим процессам;
- обеспечение возможности расчёта удельных норм расхода электроэнергии для отдельных технологических объектов и технологических процессов;
- отображения оперативной информации о данных технического учета электроэнергии на рабочих местах пользователей системы;
- обеспечения предоставления обобщенной информации характеризующей эффективность энергоснабжения предприятия в смежные автоматизированные системы уровня предприятия и Компании
АСТУЭ выполняет следующие функции:
- учет активной и реактивной электроэнергии по присоединениям трансформаторных подстанций и распределительных пунктов сети электроснабжения напряжением 6 кВ и 0,4 кВ;
- измерение активной и реактивной электроэнергии нарастающим итогом на начало суток;
- измерение профилей нагрузок активной и реактивной электроэнергии с интервалами усреднения 30 мин;
- измерение коэффициента мощности;
- периодический сбор значений измеренных параметров технического учета и их верификацию на сервере АСТУЭ;
- расчет балансов электроэнергии для различных интервалов времени (30 мин, час, сутки) и контроль небалансов по объектам в целом и по уровням напряжения в целях верификации собранных данных и контроля работоспособности счетчиков;
- контроль журналов событий приборов учета;
- формирование и ведение базы данных технического учета электроэнергии;
- формирование групп учета по отдельным потребителям;
- формирование отчетов, графиков, ведомостей учета;
- долговременное хранение данных по учету;
- выдача обобщенных данных по учету на уровни ДО и Компании для обеспечения расчета фактических удельных норм;
- обеспечение данных для расчета допустимого и контроля фактического небаланса;
- авторизованное предоставление информации пользователям системы;
- синхронизация собственных часов приборов учета с источником астрономического времени с требуемой точностью.
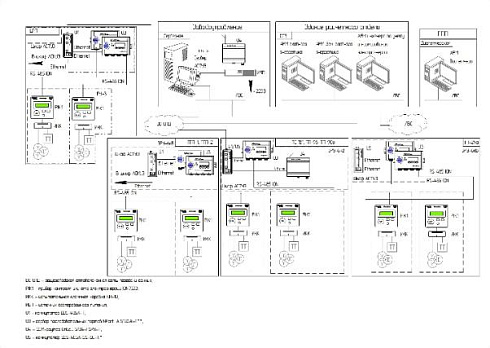
Стандартный комплект АСТУЭ:
- шкафы АСТУЭ с оборудованием, обеспечивающие функционирование электронной и программной части АСТУЭ;
- серверы последовательных портов;
- коммутаторы;
- GSM-роутеры;
- шлюз-серверы;
- приборы контроля и учета электроэнергии;
- терминалы релейной защиты;
- источники питания;
- источники бесперебойного питания;
- сервер АСТУЭ;
- автоматизированные рабочие места (АРМ) диспетчера, инженера, главного энергетика и заместителя главного энергетика

